2 Sheaf Street, Daventry, Northamptonshire, NN11 4AB & 1 Tavern Lane, Daventry, NN11 4XF
Sheaf Street & 1 Tavern Lane, , Daventry, NN11 4AB
- 1
Key features
Guide Price: *
£285,000
Fees apply
Buyer's fee:£4,800
Admin fee:£576
Legal fee:£1,182
All fees include VAT at 20%
Auction Type:
† Traditional
Highest bid:
£280,000Bid history
1 bidF
28/05/2026 10:51:43 - £280,000
For Sale by Auction
Three-storey Former Nursery in the historical heart of Daventry
GIA: 379 sq.m / 4,079.52 sq.ft
Freehold with Vacant Possession
Description
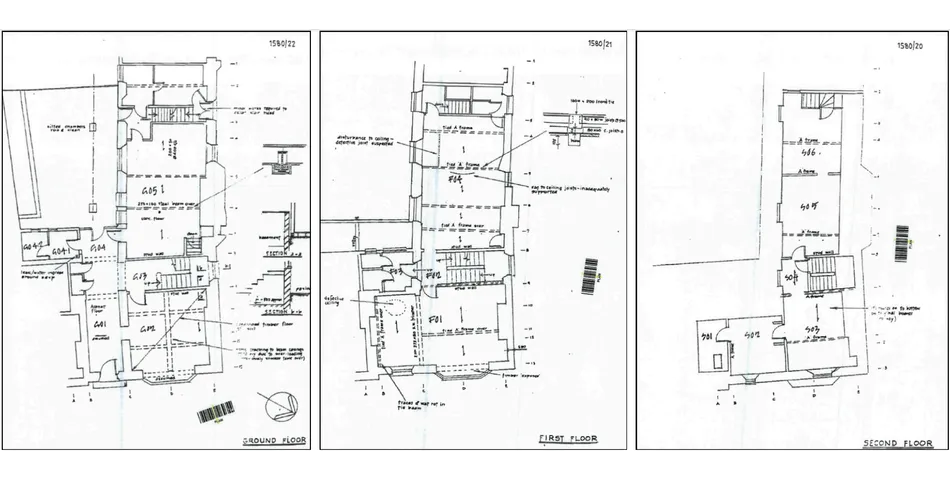
The property is a multi-story building, constructed of painted white stucco or plaster. The building displays architectural features such as crenelated parapets (crests or battlements) prominent bay window on the second floor. There are three separate entrances into the building, providing the opportunity to separate the areas.
Accommodation SQ.M SQ. FT.
Grd Flr Nursery 24.29 261.45
Grd Flr WCs 4.50 48.43
Grd Flr Nursery 37.36 402.13
Grd Flr Kitchen 12.65 136.16
Grd Flr Nursery 23.39 251.76
Grd Flr WCs 4.47 48.11
Grd Flr Nursery 23.09 248.53
1st Floor Office 36.70 395.03
1st Floor Office 44.19 475.65
1st Floor Nursery 42.06 452.73
2nd Floor Storage 92.64 997.16
Bsmt Storage 3.58 38.53
Bsmt Storage 14.25 153.38
Total Area 379 4,079.52
Location
The property is situated on the popular and characterful Sheaf Street, a key part of the Daventry town's retail offering, providing a practical and functional location for high street commercial units. Its central position ensures a steady flow of footfall from residents and visitors.
To this end, Daventry provides ample and free town centre parking, including convenient car parks just off Sheaf Street, which significantly enhances its drawing power for shoppers arriving by car. The street's traditional architecture provides a charming aesthetic, fitting well with the character of a market town. The street features a mix of local businesses, from long-standing independent shops to recent additions, contributing to a varied but accessible shopping environment.
Daventry is a well-connected market town in Northamptonshire, offering a balance of business opportunities and a comfortable lifestyle. With easy access to the M1 and A45, it is a practical choice for businesses, particularly in logistics and retail. The town has a mix of independent shops, supermarkets, and growing commercial spaces, alongside green areas like Daventry County Park. With good schools, and local amenities, Daventry provides a convenient and welcoming place to live and work.
Utilities
It is assumed that the property is connected to all mains services to include water, gas, electricity, and drainage.
Please note that Howkins & Harrison have not tested the availability or adequacy of the services, but it is assumed that the supplies are sufficient for its proposed use.
Online Auction Access
Please visit the Howkins & Harrison website (howkinsandharrison.co.uk), click 'Auctions' in the main heading menu then 'Online Auctions'. To bid; click 'Register' and verify your email address. Should you be successful in the purchase of this property, the following payments are due upon exchange:
£5,000 (incl VAT) is taken from the registered card (on the fall of the hammer) and is apportioned as
follows:
- Auctioneers Buyers Premium - £1,800 (inc VAT)
- Auction Platform Fee - £1,980 (inc VAT)
- £1,220 towards deposit.
The remainder of the 10% deposit of the purchase price is due by 12pm the next working day. We would advise you have a solicitor instructed prior to the auction end date to deal with funds upon exchange.
The purchaser is subject to the following payments upon completion:
- Balance of the purchase price
- Search fees - £1,182 (inc VAT)
- Administration fee - £420 (plus VAT).
Full terms and conditions for the online auction are available on our website.
Outgoings
We have established from the Valuation Office Agency website that the property has the following rateable value of £30,000 as of the 1 April 2023 and is listed as Day nursery and premises.
EPC
Legislation came into force from the 1 April 2023 where all commercial properties regardless of when the tenancy was signed will be required to have an EPC which meets the minimum 'E' standard unless the property holds an exemption certificate.
We have had regard to the Government website and the property had an EPC rating of E
Planning
For the purpose of this report, we shall assume that the property has planning permission for its current use as commercial until within an 'E' Class under the Town and Country Planning Act Use Classes order 1987 as amended in September 2020.
The property is Grade II listed.
Any change of use from the current use class would require a planning application.
Viewings
Strictly by prior appointment with Sole agents Howkins & Harrison LLP.
Please contact Alex Brown or Charles Morton on 01788564680.
For Sale by Auction
Three-storey Former Nursery in the historical heart of Daventry
GIA: 379 sq.m / 4,079.52 sq.ft
Freehold with Vacant Possession
Description
The property is a multi-story building, constructed of painted white stucco or plaster. The building displays architectural features such as crenelated parapets (crests or battlements) prominent bay window on the second floor. There are three separate entrances into the building, providing the opportunity to separate the areas.
Accommodation SQ.M SQ. FT.
Grd Flr Nursery 24.29 261.45
Grd Flr WCs 4.50 48.43
Grd Flr Nursery 37.36 402.13
Grd Flr Kitchen 12.65 136.16
Grd Flr Nursery 23.39 251.76
Grd Flr WCs 4.47 48.11
Grd Flr Nursery 23.09 248.53
1st Floor Office 36.70 395.03
1st Floor Office 44.19 475.65
1st Floor Nursery 42.06 452.73
2nd Floor Storage 92.64 997.16
Bsmt Storage 3.58 38.53
Bsmt Storage 14.25 153.38
Total Area 379 4,079.52
Location
The property is situated on the popular and characterful Sheaf Street, a key part of the Daventry town's retail offering, providing a practical and functional location for high street commercial units. Its central position ensures a steady flow of footfall from residents and visitors.
To this end, Daventry provides ample and free town centre parking, including convenient car parks just off Sheaf Street, which significantly enhances its drawing power for shoppers arriving by car. The street's traditional architecture provides a charming aesthetic, fitting well with the character of a market town. The street features a mix of local businesses, from long-standing independent shops to recent additions, contributing to a varied but accessible shopping environment.
Daventry is a well-connected market town in Northamptonshire, offering a balance of business opportunities and a comfortable lifestyle. With easy access to the M1 and A45, it is a practical choice for businesses, particularly in logistics and retail. The town has a mix of independent shops, supermarkets, and growing commercial spaces, alongside green areas like Daventry County Park. With good schools, and local amenities, Daventry provides a convenient and welcoming place to live and work.
Utilities
It is assumed that the property is connected to all mains services to include water, gas, electricity, and drainage.
Please note that Howkins & Harrison have not tested the availability or adequacy of the services, but it is assumed that the supplies are sufficient for its proposed use.
Online Auction Access
Please visit the Howkins & Harrison website (howkinsandharrison.co.uk), click 'Auctions' in the main heading menu then 'Online Auctions'. To bid; click 'Register' and verify your email address. Should you be successful in the purchase of this property, the following payments are due upon exchange:
£5,000 (incl VAT) is taken from the registered card (on the fall of the hammer) and is apportioned as
follows:
- Auctioneers Buyers Premium - £1,800 (inc VAT)
- Auction Platform Fee - £1,980 (inc VAT)
- £1,220 towards deposit.
The remainder of the 10% deposit of the purchase price is due by 12pm the next working day. We would advise you have a solicitor instructed prior to the auction end date to deal with funds upon exchange.
The purchaser is subject to the following payments upon completion:
- Balance of the purchase price
- Search fees - £1,182 (inc VAT)
- Administration fee - £420 (plus VAT).
Full terms and conditions for the online auction are available on our website.
Outgoings
We have established from the Valuation Office Agency website that the property has the following rateable value of £30,000 as of the 1 April 2023 and is listed as Day nursery and premises.
EPC
Legislation came into force from the 1 April 2023 where all commercial properties regardless of when the tenancy was signed will be required to have an EPC which meets the minimum 'E' standard unless the property holds an exemption certificate.
We have had regard to the Government website and the property had an EPC rating of E
Planning
For the purpose of this report, we shall assume that the property has planning permission for its current use as commercial until within an 'E' Class under the Town and Country Planning Act Use Classes order 1987 as amended in September 2020.
The property is Grade II listed.
Any change of use from the current use class would require a planning application.
Viewings
Strictly by prior appointment with Sole agents Howkins & Harrison LLP.
Please contact Alex Brown or Charles Morton on 01788564680.
Summary
- Auction end
- 3rd Jun at 11:00
- Property type
- Other
- Tenure
- Freehold
- Bedrooms
- -
- Bathrooms
- -
- Council tax band
- N/A
Guide Price: *
£285,000
Fees apply
Buyer's fee:£4,800
Admin fee:£576
Legal fee:£1,182
All fees include VAT at 20%
Auction Type:
† Traditional
Highest bid:
£280,000Bid history
1 bidF
28/05/2026 10:51:43 - £280,000
Summary
- Auction end
- 3rd Jun at 11:00
- Property type
- Other
- Tenure
- Freehold
- Bedrooms
- -
- Bathrooms
- -
- Council tax band
- N/A
This property is being sold by:

Howkins & Harrison - Rugby
01788 564 666
7-11 Albert Street, Rugby, Warwickshire, CV21 2RX
†Traditional auction
Exchange occurs at the end of the auction. This means that if the reserve is met or exceeded and the auction timer reaches zero, the successful bidder is legally obliged to pay the purchase price and the seller will be legally obliged to sell the property. To ensure that the successful bidder proceeds, the buyer is automatically charged a holding deposit, which is held in a secure client account, pursuant to the terms of a holding deposit agreement.
* Pricing Information
The Guide Price amount specified is an indication of each seller's minimum expectation. It is not necessarily the amount at which the property will sell. Each property will be offered subject to a Reserve (a figure below which the property will not be sold) which we expect will be set no more than 10% above the Guide Price amount.
Bamboo Proptech and Howkins & Harrison Online Auction shall not be liable for any inaccuracies in the fees stated on this description page, in the bidding confirmation pop up or in the particulars. Buyers should check the contents of the legal pack and special conditions for accurate information on fees. Where there is a conflict between the fees stated in the particulars, the bid information box above or the bidding confirmation pop up and the contents of the legal pack, the contents of the legal pack shall prevail.
Stamp Duty Land Tax or Land and Buildings Transaction Tax may also apply in some circumstances.
Refreshing the Page
To make sure that you are seeing the latest information for the property, we recommend you refresh the page. This ensures you're seeing live information and not stored (cached) data. If the page disconnects from the Internet, refreshing the page will show the latest information.
Disclaimer
All information relating to this property, including descriptions, pictures and other related information has been provided by Howkins & Harrison Online Auction. All legal documents in relation to this property have been provided by the Vendor's solicitor. Neither Bamboo Proptech or any individual in employment with Bamboo Proptech makes any warranty as to the accuracy or completeness of any of the property information.
These particulars do not form part of any contract or offer. Buyers should not rely on them as statements of representation and should check that the information is correct by inspection or otherwise. Where there is a conflict between the contents of the legal documents and these particulars, the information contained in the legal documents shall prevail.
Pursuant to the Auctioneer Act 1845, this auction is being conducted by the auctioneer stated above. All participants in this online auction shall note that both the Auctions (Bidding Agreements) Act 1927 and 1969 shall apply.
Where stated in the bid box above, you agree that Bamboo may pre-authorise your card for the amount of the Buyer's fee and Deposit. You will only be charged if you are the winning buyer. We will release the pre-authorisation at the end of the auction. You card issuer may take up to 10 working days for this amount to be available to you in your account.



