27, Glensdale Street, Leeds, LS9 9JJ
Glensdale Street, Leeds, LS9 9JJ
- 10
Key features
Guide Price: *
£120,000
Fees apply
Reservation fee:3.60% (min. £6,000)
All fees include VAT at 20%
Auction Type:
† Conditional
Opening bid:
£120,000Bid history
0 bids**AGENT REFERENCE - Lauren Power
NOTE FOR BUYERS AND METHOD OF SALE : This property is offered for sale by Conditional Online Auction T&C's apply.
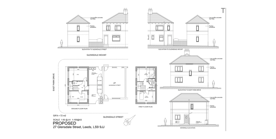
Welcome to Glensdale Street, a spacious three-bedroom end terrace with full planning permission granted for a single detached dwelling in the side garden. This unique feature makes it an exciting opportunity for developers, investors, or buyers looking to create additional value and long-term potential.
Inside, the property offers a generous layout with a bright living room, a fitted kitchen with ample workspace, and two useful under-stair storage cupboards. Upstairs are three well-proportioned bedrooms and a modern family bathroom, providing plenty of flexibility for a small family, first-time buyer, or rental investor.
Externally, there’s an enclosed garden to the front with gated access — the location of the approved planning, offering the perfect plot for future development.
Glensdale Street sits within a popular pocket of East Leeds, close to local shops, schools, and everyday amenities. The area offers excellent transport links into Leeds city centre, making it ideal for commuters or those working in the city. Nearby, you’ll also find green spaces, leisure facilities, and a growing number of local cafes and independent stores as the area continues to develop and attract new investment.
For full planning details, visit the Leeds City Council portal using reference 23/05103/FU.
NOTE FOR BUYERS AND METHOD OF SALE :
The property is offered for sale by Conditional Online Auction (unless sold prior.) The auction ends on Wednesday 28th January at 1pm. The vendor reserves the right to withdraw, sell or alter the property for sale prior to the auction end date.
LEGAL PACK
Copies of the legal pack are available online to be downloaded, via the tab on the online auction property listing page. Prospective purchasers will need to register with the Bamboo online platform in order to download the legal pack. It is the purchaser’s responsibility to make all necessary enquiries prior to the auction. Prospective purchasers are strongly advised to inspect the legal documentation, this will/may contain material information regarding the property, and to consult legal advice prior to bidding.
For Sale Via The Home Movement Online Auction powered by Bamboo Auctions.
Auction end date and time: Wednesday 8th October, 1pm
The registration process is straightforward and free. Please visit The Home Movement's website, and click on the 'online auction' tab
A 'register' button can be found on this page or by clicking on the individual listing.
Stage 1) Register your email address, create a password and confirm your account.
Stage 2) View the legal pack and arrange any viewings
Stage 3) If you would like to bid, use the 'dashboard' button and complete your ID check and enter your payment and solicitors details
Stage 4) You are ready to bid - Good Luck!
The Home Movement
BUYERS FEES
The successful purchaser(s) will pay the sum of 3% + VAT subject to a minimum of £5,000+VAT at the end of the auction.
**AGENT REFERENCE - Lauren Power
NOTE FOR BUYERS AND METHOD OF SALE : This property is offered for sale by Conditional Online Auction T&C's apply.
Welcome to Glensdale Street, a spacious three-bedroom end terrace with full planning permission granted for a single detached dwelling in the side garden. This unique feature makes it an exciting opportunity for developers, investors, or buyers looking to create additional value and long-term potential.
Inside, the property offers a generous layout with a bright living room, a fitted kitchen with ample workspace, and two useful under-stair storage cupboards. Upstairs are three well-proportioned bedrooms and a modern family bathroom, providing plenty of flexibility for a small family, first-time buyer, or rental investor.
Externally, there’s an enclosed garden to the front with gated access — the location of the approved planning, offering the perfect plot for future development.
Glensdale Street sits within a popular pocket of East Leeds, close to local shops, schools, and everyday amenities. The area offers excellent transport links into Leeds city centre, making it ideal for commuters or those working in the city. Nearby, you’ll also find green spaces, leisure facilities, and a growing number of local cafes and independent stores as the area continues to develop and attract new investment.
For full planning details, visit the Leeds City Council portal using reference 23/05103/FU.
NOTE FOR BUYERS AND METHOD OF SALE :
The property is offered for sale by Conditional Online Auction (unless sold prior.) The auction ends on Wednesday 28th January at 1pm. The vendor reserves the right to withdraw, sell or alter the property for sale prior to the auction end date.
LEGAL PACK
Copies of the legal pack are available online to be downloaded, via the tab on the online auction property listing page. Prospective purchasers will need to register with the Bamboo online platform in order to download the legal pack. It is the purchaser’s responsibility to make all necessary enquiries prior to the auction. Prospective purchasers are strongly advised to inspect the legal documentation, this will/may contain material information regarding the property, and to consult legal advice prior to bidding.
For Sale Via The Home Movement Online Auction powered by Bamboo Auctions.
Auction end date and time: Wednesday 8th October, 1pm
The registration process is straightforward and free. Please visit The Home Movement's website, and click on the 'online auction' tab
A 'register' button can be found on this page or by clicking on the individual listing.
Stage 1) Register your email address, create a password and confirm your account.
Stage 2) View the legal pack and arrange any viewings
Stage 3) If you would like to bid, use the 'dashboard' button and complete your ID check and enter your payment and solicitors details
Stage 4) You are ready to bid - Good Luck!
The Home Movement
BUYERS FEES
The successful purchaser(s) will pay the sum of 3% + VAT subject to a minimum of £5,000+VAT at the end of the auction.
Summary
- Auction end
- 25th Feb at 13:00
- Property type
- Semi-Detached
- Tenure
- Freehold
- Bedrooms
- 3
- Bathrooms
- 1
- Council tax band
- A
Guide Price: *
£120,000
Fees apply
Reservation fee:3.60% (min. £6,000)
All fees include VAT at 20%
Auction Type:
† Conditional
Opening bid:
£120,000Bid history
0 bidsSummary
- Auction end
- 25th Feb at 13:00
- Property type
- Semi-Detached
- Tenure
- Freehold
- Bedrooms
- 3
- Bathrooms
- 1
- Council tax band
- A
This property is being sold by:

The Home Movement - Head office
+44113 873 0530
The Home Movement 5 Ivegate, Yeadon, LS19 7RE
†Conditional auction
If the reserve is met or exceeded and the auction timer reaches zero, an exclusivity period begins in relation to that property. The successful bidder is contractually required to exchange on the property on or before the expiry of 20 working days from the end of the auction (unless otherwise stated in the "Other Key Info" section in the listing above). All properties sold by conditional auction are sold subject to a reservation fee which is clearly stated in the terms and conditions attached to the property and in the bidding box before a bid is placed. The reservation fee is payable in addition to the final purchase price and is received on a non-refundable basis, subject to the terms of the Reservation Agreement. To ensure that the successful bidder proceeds, the winning buyer is automatically charged a reservation fee and agrees prior to making their bid, to pay any outstanding amount of the property reservation fee immediately at the end of the auction. The auctioneer will be authorised to sign the reservation agreement on both the buyer’s and seller’s behalf. If by the seller’s act, exchange does not occur on or before the expiry of 20 working days from the end of the auction (unless otherwise stated in the "Other Key Info" section in the listing above), the reservation fee shall be fully refunded to the buyer. If the buyer fails to exchange on or before the expiry of 20 working days from the end of the auction (unless otherwise stated in the "Other Key Info" section in the listing above), they will forfeit the full amount of the reservation fee.Fees paid to the Auctioneer may be considered as part of the chargeable consideration for the property and be included in the calculation for stamp duty liability. Further clarification on this must be sought from your legal representative.
* Pricing Information
The Guide Price amount specified is an indication of each seller's minimum expectation. It is not necessarily the amount at which the property will sell. Each property will be offered subject to a Reserve (a figure below which the property will not be sold) which we expect will be set no more than 10% above the Guide Price amount.
Bamboo Proptech and The Home Movement Online Auction shall not be liable for any inaccuracies in the fees stated on this description page, in the bidding confirmation pop up or in the particulars. Buyers should check the contents of the legal pack and special conditions for accurate information on fees. Where there is a conflict between the fees stated in the particulars, the bid information box above or the bidding confirmation pop up and the contents of the legal pack, the contents of the legal pack shall prevail.
Stamp Duty Land Tax or Land and Buildings Transaction Tax may also apply in some circumstances.
Refreshing the Page
To make sure that you are seeing the latest information for the property, we recommend you refresh the page. This ensures you're seeing live information and not stored (cached) data. If the page disconnects from the Internet, refreshing the page will show the latest information.
Disclaimer
All information relating to this property, including descriptions, pictures and other related information has been provided by The Home Movement Online Auction. All legal documents in relation to this property have been provided by the Vendor's solicitor. Neither Bamboo Proptech or any individual in employment with Bamboo Proptech makes any warranty as to the accuracy or completeness of any of the property information.
These particulars do not form part of any contract or offer. Buyers should not rely on them as statements of representation and should check that the information is correct by inspection or otherwise. Where there is a conflict between the contents of the legal documents and these particulars, the information contained in the legal documents shall prevail.
Pursuant to the Auctioneer Act 1845, this auction is being conducted by the auctioneer stated above. All participants in this online auction shall note that both the Auctions (Bidding Agreements) Act 1927 and 1969 shall apply.
Where stated in the bid box above, you agree that Bamboo may pre-authorise your card for the amount of the Buyer's fee and Deposit. You will only be charged if you are the winning buyer. We will release the pre-authorisation at the end of the auction. You card issuer may take up to 10 working days for this amount to be available to you in your account.



