A former Pub/Restaurant with development potential and planning consent granted for conversion to two residential units
Watermouth Road, Ilfracombe, EX34 9QY
- 9
Key features
Guide Price: *
£185,000
Fees apply
Buyer's fee:£3,600
Legal fee:£469.20
All fees include VAT at 20%
Holding Deposit: *£1,400
*Only charged if you are the successful buyer and goes towards the purchase price
Auction Type:
† Traditional
Opening bid:
£185,000Bid history
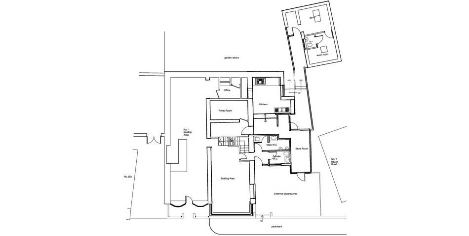
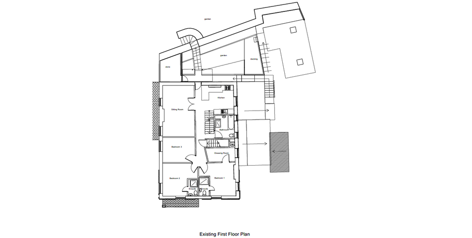
0 bidsFOR SALE BY ONLINE AUCTION - End of Auction: Tuesday 3rd March at 12 noon. A spacious link-detached property with excellent commercial and redevelopment potential, situated in a popular location close to the picturesque rocky cove bay at Hele. Planning permission has been passed for the conversion of the building into two self-contained flats with scope to tweak that planning if required. The property is the former Hele Billy's Public House and Restaurant so resurrecting the previous commercial use would be very straightforward. Some general modernisation and updating works are required. No onward chain.
FOR SALE BY ONLINE AUCTION - End of Auction: Tuesday 3rd March at 12 noon. GUIDE PRICE OFFERS IN EXCESS OF £185,000. TO BID, WATCH THIS PROPERTY OR REGISTER YOUR INTEREST VISIT OUR BIDDING PLATFORM BY FOLLOWING THE LINK IN THE PHOTO CAROUSEL. THE PROPERTY The property has been used in the past for a variety of purposes including a guest house, restaurant, tea room and in more recent years has been used as a large freehold freehouse/restaurant and a private home. The buiding is now vacant and is in need of some modernisation and renovation works. Planning permission was granted on 5th December 2023 for the conversion and change of use of the bar and restaurant to form two individual residential apartments thus giving the property plenty of scope for significant redevelopment. The consented planning provides for two large 2 bedroom maisonettes each with their own areas of garden/outside space. There is also potential to obtain consent for the property to become one large single residential dwelling as well if desired but this would require a fresh application to the Local Authority. At present, the building is arranged with accommodation over three floors. The ground floor is the commercial space and comprises what was a 24 seater restaurant area with a large through bar, with public toilets, a commercial kitchen and freezer room. The private accommodation is located on the upper floors. On the first floor there are three bedrooms (two with en-suite facilities, one with a dressing room), a guest bathroom and to the rear there is a 20ft lounge and a private kitchen. On the top floor level there is a further bedroom/games room with sea views. In total, there is approximately 319m2 (3,434ft2), of floor area within the property. (Floor area taken from the EPC). In all, the property occupies a large plot of approximately 0.19 acres with amenity spaces immediately adjacent to the building in the form of courtyards, patios and a couple of balconies at the rear. There is a very large albeit steep and overgrown rear garden which extends away from the property and up over the side of the hill. Furthermore, there is a store shed and useful addtional detached single storey office building come store with a wc to the rear as well. LOCATION Fronting the main Eastern approach road into the resort of Ilfracombe within the popular hamlet of Hele, the subject premises are in a prime position for passing trade. The property is within a short distance of the picturesque Hele Cove and beach, large public car park and un-restricted parking on the main roadside. The town of Ilfracombe is approximately 1 ½ miles away and offers a host of tourist facilities including beaches, tennis courts, gift shops and of course the harbour. Ilfracombe has undergone much inward investment in recent years including a Wetherspoon’s Public House, a Tesco’s, a Lidl’s and Co-Op supermarkets. The world renowned artist Damien Hirst has given on loan to the town a statue called ‘Verity’ which is located on the pier which has attracted thousands of day visitors to the resort. There are schools for all ages, a Medical Centre and Hospital and the usual facilites you would expect to find in a good-sized town.
Traditional Online Auction Information
Please note: this property is for sale by traditional online auction. This means that exchange will occur when the online timer reaches zero (provided the seller's reserve price has been met or exceeded). The winning buyer will be legally obliged to purchase the property at this price.
Pricing Information
The Guide Price amount specified is an indication of each seller's minimum expectation. It is not necessarily the amount at which the property will sell. Each property will be offered subject to a Reserve (a figure below which the property will not be sold) which we expect will be set no more than 10% above the Guide Price amount.
Webbers and Bamboo Auctions shall not be liable for any inaccuracies in the fees stated on this description page, in the bidding confirmation pop up or in the particulars. Buyers should check the contents of the legal pack and special conditions for accurate information on fees. Where there is a conflict between the fees stated in the particulars, the bid information box or the bidding confirmation pop up and the contents of the legal pack, the contents of the legal pack shall prevail. Stamp Duty Land Tax or Land and Buildings Transaction Tax may also apply in some circumstances.
Buyer’s Premium & Other Charges
The winning buyer is charged a sum of £5,000. From this a buyers fee of £3,960 (including VAT) is retained by Webbers/Bamboo Auctions as a contribution towards online platform costs and £1,040 is payable towards the purchase price. On completion the Buyer will pay the sum of £468.99 (including vat) to the Seller’s solicitors in reimbursement of search fees.
SELLER'S SOLICITOR
Marius Nel
Brewer Harding & Rowe Solicitors LLP
6/8 Caen Street
Barnstaple
Devon
EX34 1AA
Email: marius.nel@bhrlaw.co.uk
Tel: 01271 818372
FOR SALE BY ONLINE AUCTION - End of Auction: Tuesday 3rd March at 12 noon. A spacious link-detached property with excellent commercial and redevelopment potential, situated in a popular location close to the picturesque rocky cove bay at Hele. Planning permission has been passed for the conversion of the building into two self-contained flats with scope to tweak that planning if required. The property is the former Hele Billy's Public House and Restaurant so resurrecting the previous commercial use would be very straightforward. Some general modernisation and updating works are required. No onward chain.
FOR SALE BY ONLINE AUCTION - End of Auction: Tuesday 3rd March at 12 noon. GUIDE PRICE OFFERS IN EXCESS OF £185,000. TO BID, WATCH THIS PROPERTY OR REGISTER YOUR INTEREST VISIT OUR BIDDING PLATFORM BY FOLLOWING THE LINK IN THE PHOTO CAROUSEL. THE PROPERTY The property has been used in the past for a variety of purposes including a guest house, restaurant, tea room and in more recent years has been used as a large freehold freehouse/restaurant and a private home. The buiding is now vacant and is in need of some modernisation and renovation works. Planning permission was granted on 5th December 2023 for the conversion and change of use of the bar and restaurant to form two individual residential apartments thus giving the property plenty of scope for significant redevelopment. The consented planning provides for two large 2 bedroom maisonettes each with their own areas of garden/outside space. There is also potential to obtain consent for the property to become one large single residential dwelling as well if desired but this would require a fresh application to the Local Authority. At present, the building is arranged with accommodation over three floors. The ground floor is the commercial space and comprises what was a 24 seater restaurant area with a large through bar, with public toilets, a commercial kitchen and freezer room. The private accommodation is located on the upper floors. On the first floor there are three bedrooms (two with en-suite facilities, one with a dressing room), a guest bathroom and to the rear there is a 20ft lounge and a private kitchen. On the top floor level there is a further bedroom/games room with sea views. In total, there is approximately 319m2 (3,434ft2), of floor area within the property. (Floor area taken from the EPC). In all, the property occupies a large plot of approximately 0.19 acres with amenity spaces immediately adjacent to the building in the form of courtyards, patios and a couple of balconies at the rear. There is a very large albeit steep and overgrown rear garden which extends away from the property and up over the side of the hill. Furthermore, there is a store shed and useful addtional detached single storey office building come store with a wc to the rear as well. LOCATION Fronting the main Eastern approach road into the resort of Ilfracombe within the popular hamlet of Hele, the subject premises are in a prime position for passing trade. The property is within a short distance of the picturesque Hele Cove and beach, large public car park and un-restricted parking on the main roadside. The town of Ilfracombe is approximately 1 ½ miles away and offers a host of tourist facilities including beaches, tennis courts, gift shops and of course the harbour. Ilfracombe has undergone much inward investment in recent years including a Wetherspoon’s Public House, a Tesco’s, a Lidl’s and Co-Op supermarkets. The world renowned artist Damien Hirst has given on loan to the town a statue called ‘Verity’ which is located on the pier which has attracted thousands of day visitors to the resort. There are schools for all ages, a Medical Centre and Hospital and the usual facilites you would expect to find in a good-sized town.
Traditional Online Auction Information
Please note: this property is for sale by traditional online auction. This means that exchange will occur when the online timer reaches zero (provided the seller's reserve price has been met or exceeded). The winning buyer will be legally obliged to purchase the property at this price.
Pricing Information
The Guide Price amount specified is an indication of each seller's minimum expectation. It is not necessarily the amount at which the property will sell. Each property will be offered subject to a Reserve (a figure below which the property will not be sold) which we expect will be set no more than 10% above the Guide Price amount.
Webbers and Bamboo Auctions shall not be liable for any inaccuracies in the fees stated on this description page, in the bidding confirmation pop up or in the particulars. Buyers should check the contents of the legal pack and special conditions for accurate information on fees. Where there is a conflict between the fees stated in the particulars, the bid information box or the bidding confirmation pop up and the contents of the legal pack, the contents of the legal pack shall prevail. Stamp Duty Land Tax or Land and Buildings Transaction Tax may also apply in some circumstances.
Buyer’s Premium & Other Charges
The winning buyer is charged a sum of £5,000. From this a buyers fee of £3,960 (including VAT) is retained by Webbers/Bamboo Auctions as a contribution towards online platform costs and £1,040 is payable towards the purchase price. On completion the Buyer will pay the sum of £468.99 (including vat) to the Seller’s solicitors in reimbursement of search fees.
SELLER'S SOLICITOR
Marius Nel
Brewer Harding & Rowe Solicitors LLP
6/8 Caen Street
Barnstaple
Devon
EX34 1AA
Email: marius.nel@bhrlaw.co.uk
Tel: 01271 818372
Summary
- Auction end
- 3rd Mar at 12:00
- Property type
- Commercial
- Tenure
- Freehold
- Bedrooms
- 3
- Bathrooms
- 3
- Council tax band
- A
Guide Price: *
£185,000
Fees apply
Buyer's fee:£3,600
Legal fee:£469.20
All fees include VAT at 20%
Holding Deposit: *£1,400
*Only charged if you are the successful buyer and goes towards the purchase price
Auction Type:
† Traditional
Opening bid:
£185,000Bid history
0 bidsSummary
- Auction end
- 3rd Mar at 12:00
- Property type
- Commercial
- Tenure
- Freehold
- Bedrooms
- 3
- Bathrooms
- 3
- Council tax band
- A
This property is being sold by:

Webbers - Ilfracombe
01271 863091
48 High Street, Ilfracombe, Devon, EX34 9QB
†Traditional auction
Exchange occurs at the end of the auction. This means that if the reserve is met or exceeded and the auction timer reaches zero, the successful bidder is legally obliged to pay the purchase price and the seller will be legally obliged to sell the property. To ensure that the successful bidder proceeds, the buyer is automatically charged a holding deposit, which is held in a secure client account, pursuant to the terms of a holding deposit agreement.
* Pricing Information
The Guide Price amount specified is an indication of each seller's minimum expectation. It is not necessarily the amount at which the property will sell. Each property will be offered subject to a Reserve (a figure below which the property will not be sold) which we expect will be set no more than 10% above the Guide Price amount.
Bamboo Proptech and Webbers Online Auction shall not be liable for any inaccuracies in the fees stated on this description page, in the bidding confirmation pop up or in the particulars. Buyers should check the contents of the legal pack and special conditions for accurate information on fees. Where there is a conflict between the fees stated in the particulars, the bid information box above or the bidding confirmation pop up and the contents of the legal pack, the contents of the legal pack shall prevail.
Stamp Duty Land Tax or Land and Buildings Transaction Tax may also apply in some circumstances.
Refreshing the Page
To make sure that you are seeing the latest information for the property, we recommend you refresh the page. This ensures you're seeing live information and not stored (cached) data. If the page disconnects from the Internet, refreshing the page will show the latest information.
Disclaimer
All information relating to this property, including descriptions, pictures and other related information has been provided by Webbers Online Auction. All legal documents in relation to this property have been provided by the Vendor's solicitor. Neither Bamboo Proptech or any individual in employment with Bamboo Proptech makes any warranty as to the accuracy or completeness of any of the property information.
These particulars do not form part of any contract or offer. Buyers should not rely on them as statements of representation and should check that the information is correct by inspection or otherwise. Where there is a conflict between the contents of the legal documents and these particulars, the information contained in the legal documents shall prevail.
Pursuant to the Auctioneer Act 1845, this auction is being conducted by the auctioneer stated above. All participants in this online auction shall note that both the Auctions (Bidding Agreements) Act 1927 and 1969 shall apply.
Where stated in the bid box above, you agree that Bamboo may pre-authorise your card for the amount of the Buyer's fee and Deposit. You will only be charged if you are the winning buyer. We will release the pre-authorisation at the end of the auction. You card issuer may take up to 10 working days for this amount to be available to you in your account.





