Land at Y Felinheli
Bangor Street, Y Felinheli , ll56 4jw
- 0
Key features
Guide Price: *
£170,000
Fees apply
Reservation fee:3.60% (min. £6,000)
All fees include VAT at 20%
Auction Type:
† Conditional
Opening bid:
£170,000Bid history
0 bidsThe site is a prime coastal development opportunity located at Port Dinorwic Dock, within the highly desirable coastal village of Y Felinheli. Occupying a prominent position along the waterfront, the site benefits from its coastal setting and proximity to local amenities, transport links, and established residential development.
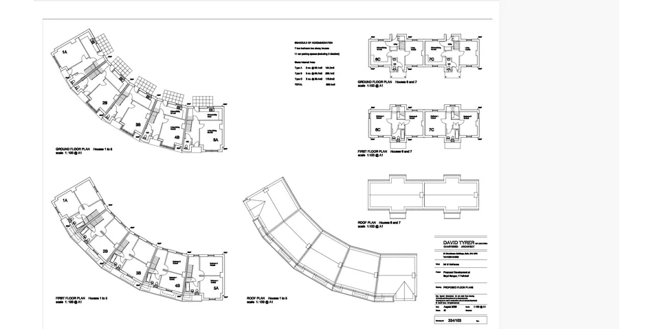
Full planning permission has been granted for the construction of seven two-bedroom residential units, designed to meet modern housing demand in this sought-after location. The approved scheme also includes eleven car parking spaces, comprising two designated disabled spaces, ensuring compliance with current accessibility and parking standards.
The consented layout offers a practical and efficient use of the site, making it well suited to immediate development.
Y Felinheli is regarded as one of the region’s most desirable coastal villages, known for its marina, waterfront setting, and convenient access to Bangor, Caernarfon, and the wider North Wales coastline. The location continues to attract both local and relocating buyers seeking coastal living combined with accessibility.
The site represents an excellent opportunity for developers or investors seeking a consented coastal scheme in a prime North Wales location, with the benefit of planning permission already in place.
Further information, including planning documentation and auction details, is available on request. Interested parties are encouraged to register their interest early.
Buyer’s Premium
A buyer’s premium of 3.6% (inclusive of VAT) is payable on a successful bid.
This fee is all-inclusive and covers the full auction service.
Additional Fees
There are no additional auction fees payable by the buyer.
The buyer’s premium covers all auction-related costs, with no hidden charges.
Legal Fees
There are no separate auction legal fees payable by the buyer.
Buyers are, however, responsible for their own legal costs and disbursements incurred in connection with the purchase, as is standard practice.
Auction Method
The property is offered for sale by conditional auction also known as modern method of auction, providing a transparent and time-defined route to completion.
Upon acceptance of an offer, the buyer will be required to proceed in accordance with the auction terms, leading to a legally binding sale.
Special Conditions
The sale will be subject to the auction terms and conditions and any special conditions of sale outlined within the legal pack.
Interested parties are strongly advised to review the legal documentation in full and seek independent legal advice prior to bidding.
The site is a prime coastal development opportunity located at Port Dinorwic Dock, within the highly desirable coastal village of Y Felinheli. Occupying a prominent position along the waterfront, the site benefits from its coastal setting and proximity to local amenities, transport links, and established residential development.
Full planning permission has been granted for the construction of seven two-bedroom residential units, designed to meet modern housing demand in this sought-after location. The approved scheme also includes eleven car parking spaces, comprising two designated disabled spaces, ensuring compliance with current accessibility and parking standards.
The consented layout offers a practical and efficient use of the site, making it well suited to immediate development.
Y Felinheli is regarded as one of the region’s most desirable coastal villages, known for its marina, waterfront setting, and convenient access to Bangor, Caernarfon, and the wider North Wales coastline. The location continues to attract both local and relocating buyers seeking coastal living combined with accessibility.
The site represents an excellent opportunity for developers or investors seeking a consented coastal scheme in a prime North Wales location, with the benefit of planning permission already in place.
Further information, including planning documentation and auction details, is available on request. Interested parties are encouraged to register their interest early.
Buyer’s Premium
A buyer’s premium of 3.6% (inclusive of VAT) is payable on a successful bid.
This fee is all-inclusive and covers the full auction service.
Additional Fees
There are no additional auction fees payable by the buyer.
The buyer’s premium covers all auction-related costs, with no hidden charges.
Legal Fees
There are no separate auction legal fees payable by the buyer.
Buyers are, however, responsible for their own legal costs and disbursements incurred in connection with the purchase, as is standard practice.
Auction Method
The property is offered for sale by conditional auction also known as modern method of auction, providing a transparent and time-defined route to completion.
Upon acceptance of an offer, the buyer will be required to proceed in accordance with the auction terms, leading to a legally binding sale.
Special Conditions
The sale will be subject to the auction terms and conditions and any special conditions of sale outlined within the legal pack.
Interested parties are strongly advised to review the legal documentation in full and seek independent legal advice prior to bidding.
Reservation Agreement Terms
Conditional Method of Auction
Upon acceptance of an offer, the successful buyer will be required to enter into a Reservation Agreement and pay a reservation fee equivalent to 3.6% of the agreed purchase price, inclusive of VAT. This reservation fee is payable immediately upon acceptance and is non-refundable, subject to the terms set out within the Reservation Agreement.
The reservation fee is all-inclusive and covers the full auction service, including marketing and administration costs. There are no additional auction, administration, or legal fees payable to the auctioneer in connection with the sale.
The Reservation Agreement provides the buyer with an exclusive reservation period, during which the seller agrees not to negotiate with or sell the property to another party. The reservation period is typically 56 days, during which time the buyer is required to progress the purchase diligently and work towards the exchange of contracts.
The sale is offered by way of the conditional (modern) method of auction, meaning that the Reservation Agreement secures the property for the buyer, with the exchange of contracts required to take place within the agreed reservation period. Completion will follow in accordance with the contract terms once exchange has occurred. Should the buyer fail to exchange contracts within the reservation period, the reservation fee may be forfeited, subject to the terms of the Reservation Agreement.
Buyers are responsible for their own legal fees, survey costs, searches, and any other disbursements incurred during the conveyancing process. Prospective purchasers are strongly advised to review the legal pack in full and seek independent legal advice prior to entering into the Reservation Agreement.
The sale is subject to the auction terms and conditions and any special conditions of sale contained within the legal documentation. All information provided is believed to be correct but does not form part of any contract.
Summary
- Auction end
- 13th Mar at 11:00
- Property type
- Land
- Tenure
- Commonhold
- Council tax band
- Ask Agent
Guide Price: *
£170,000
Fees apply
Reservation fee:3.60% (min. £6,000)
All fees include VAT at 20%
Auction Type:
† Conditional
Opening bid:
£170,000Bid history
0 bidsSummary
- Auction end
- 13th Mar at 11:00
- Property type
- Land
- Tenure
- Commonhold
- Council tax band
- Ask Agent
This property is being sold by:

Elite Property Auctions - Liverpool
07442705957
50 Hughes Avenue, Prescot, United Kingdom, L35 5EP
†Conditional auction
If the reserve is met or exceeded and the auction timer reaches zero, an exclusivity period begins in relation to that property. The successful bidder is contractually required to exchange on the property on or before the expiry of 20 working days from the end of the auction (unless otherwise stated in the "Other Key Info" section in the listing above). All properties sold by conditional auction are sold subject to a reservation fee which is clearly stated in the terms and conditions attached to the property and in the bidding box before a bid is placed. The reservation fee is payable in addition to the final purchase price and is received on a non-refundable basis, subject to the terms of the Reservation Agreement. To ensure that the successful bidder proceeds, the winning buyer is automatically charged a reservation fee and agrees prior to making their bid, to pay any outstanding amount of the property reservation fee immediately at the end of the auction. The auctioneer will be authorised to sign the reservation agreement on both the buyer’s and seller’s behalf. If by the seller’s act, exchange does not occur on or before the expiry of 20 working days from the end of the auction (unless otherwise stated in the "Other Key Info" section in the listing above), the reservation fee shall be fully refunded to the buyer. If the buyer fails to exchange on or before the expiry of 20 working days from the end of the auction (unless otherwise stated in the "Other Key Info" section in the listing above), they will forfeit the full amount of the reservation fee.Fees paid to the Auctioneer may be considered as part of the chargeable consideration for the property and be included in the calculation for stamp duty liability. Further clarification on this must be sought from your legal representative.
* Pricing Information
The Guide Price amount specified is an indication of each seller's minimum expectation. It is not necessarily the amount at which the property will sell. Each property will be offered subject to a Reserve (a figure below which the property will not be sold) which we expect will be set no more than 10% above the Guide Price amount.
Bamboo Proptech and Elite Property Auctions shall not be liable for any inaccuracies in the fees stated on this description page, in the bidding confirmation pop up or in the particulars. Buyers should check the contents of the legal pack and special conditions for accurate information on fees. Where there is a conflict between the fees stated in the particulars, the bid information box above or the bidding confirmation pop up and the contents of the legal pack, the contents of the legal pack shall prevail.
Stamp Duty Land Tax or Land and Buildings Transaction Tax may also apply in some circumstances.
Refreshing the Page
To make sure that you are seeing the latest information for the property, we recommend you refresh the page. This ensures you're seeing live information and not stored (cached) data. If the page disconnects from the Internet, refreshing the page will show the latest information.
Disclaimer
All information relating to this property, including descriptions, pictures and other related information has been provided by Elite Property Auctions. All legal documents in relation to this property have been provided by the Vendor's solicitor. Neither Bamboo Proptech or any individual in employment with Bamboo Proptech makes any warranty as to the accuracy or completeness of any of the property information.
These particulars do not form part of any contract or offer. Buyers should not rely on them as statements of representation and should check that the information is correct by inspection or otherwise. Where there is a conflict between the contents of the legal documents and these particulars, the information contained in the legal documents shall prevail.
Pursuant to the Auctioneer Act 1845, this auction is being conducted by the auctioneer stated above. All participants in this online auction shall note that both the Auctions (Bidding Agreements) Act 1927 and 1969 shall apply.
Where stated in the bid box above, you agree that Bamboo may pre-authorise your card for the amount of the Buyer's fee and Deposit. You will only be charged if you are the winning buyer. We will release the pre-authorisation at the end of the auction. You card issuer may take up to 10 working days for this amount to be available to you in your account.


