3 Bedroom Semi, large gardens and Garage. In need of modernisation.
Newman Road, Exeter, EX4 1PL
- 0
Key features
Guide Price: *
£180,000
Fees apply
Reservation fee:5.04% (min. £7,200)
All fees include VAT at 20%
Auction Type:
† Conditional
Start price:
£180,000Bid history
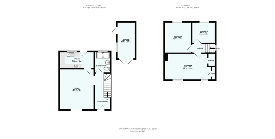
0 bids3 Bedroomed semi detached property with garage set in a very convenient location.
The property is of non standard construction and as such open to cash buyers only.
This spacious home comprises a lounge, kitchen and bathroom to the ground floor, with two double bedrooms and a further single bedroom to the first floor. Outside, the property benefits from large gardens and a garage accessed via a shared driveway. Now ripe for modernisation throughout, the property presents an exciting opportunity to create a bespoke family home.
3 Bedroomed semi detached property with garage set in a very convenient location.
The property is of non standard construction and as such open to cash buyers only.
This spacious home comprises a lounge, kitchen and bathroom to the ground floor, with two double bedrooms and a further single bedroom to the first floor. Outside, the property benefits from large gardens and a garage accessed via a shared driveway. Now ripe for modernisation throughout, the property presents an exciting opportunity to create a bespoke family home.
Summary
- Property type
- Semi-Detached
- Tenure
- Freehold
- Bedrooms
- 3
- Bathrooms
- 1
- Council tax band
- B
Guide Price: *
£180,000
Fees apply
Reservation fee:5.04% (min. £7,200)
All fees include VAT at 20%
Auction Type:
† Conditional
Start price:
£180,000Bid history
0 bidsSummary
- Property type
- Semi-Detached
- Tenure
- Freehold
- Bedrooms
- 3
- Bathrooms
- 1
- Council tax band
- B
This property is being sold by:

Bradleys - Exeter Cowick Street
01392 270720
24 Cowick Street Exeter Devon EX4 1AL
†Conditional auction
If the reserve is met or exceeded and the auction timer reaches zero, an exclusivity period begins in relation to that property. The successful bidder is contractually required to exchange on the property on or before the expiry of 20 working days from the end of the auction (unless otherwise stated in the "Other Key Info" section in the listing above). All properties sold by conditional auction are sold subject to a reservation fee which is clearly stated in the terms and conditions attached to the property and in the bidding box before a bid is placed. The reservation fee is payable in addition to the final purchase price and is received on a non-refundable basis, subject to the terms of the Reservation Agreement. To ensure that the successful bidder proceeds, the winning buyer is automatically charged a reservation fee and agrees prior to making their bid, to pay any outstanding amount of the property reservation fee immediately at the end of the auction. The auctioneer will be authorised to sign the reservation agreement on both the buyer’s and seller’s behalf. If by the seller’s act, exchange does not occur on or before the expiry of 20 working days from the end of the auction (unless otherwise stated in the "Other Key Info" section in the listing above), the reservation fee shall be fully refunded to the buyer. If the buyer fails to exchange on or before the expiry of 20 working days from the end of the auction (unless otherwise stated in the "Other Key Info" section in the listing above), they will forfeit the full amount of the reservation fee.Fees paid to the Auctioneer may be considered as part of the chargeable consideration for the property and be included in the calculation for stamp duty liability. Further clarification on this must be sought from your legal representative.
* Pricing Information
The Guide Price amount specified is an indication of each seller's minimum expectation. It is not necessarily the amount at which the property will sell. Each property will be offered subject to a Reserve (a figure below which the property will not be sold) which we expect will be set no more than 10% above the Guide Price amount.
Bamboo Proptech and Bradleys Online Auction shall not be liable for any inaccuracies in the fees stated on this description page, in the bidding confirmation pop up or in the particulars. Buyers should check the contents of the legal pack and special conditions for accurate information on fees. Where there is a conflict between the fees stated in the particulars, the bid information box above or the bidding confirmation pop up and the contents of the legal pack, the contents of the legal pack shall prevail.
Stamp Duty Land Tax or Land and Buildings Transaction Tax may also apply in some circumstances.
Refreshing the Page
To make sure that you are seeing the latest information for the property, we recommend you refresh the page. This ensures you're seeing live information and not stored (cached) data. If the page disconnects from the Internet, refreshing the page will show the latest information.
Disclaimer
All information relating to this property, including descriptions, pictures and other related information has been provided by Bradleys Online Auction. All legal documents in relation to this property have been provided by the Vendor's solicitor. Neither Bamboo Proptech or any individual in employment with Bamboo Proptech makes any warranty as to the accuracy or completeness of any of the property information.
These particulars do not form part of any contract or offer. Buyers should not rely on them as statements of representation and should check that the information is correct by inspection or otherwise. Where there is a conflict between the contents of the legal documents and these particulars, the information contained in the legal documents shall prevail.
Pursuant to the Auctioneer Act 1845, this auction is being conducted by the auctioneer stated above. All participants in this online auction shall note that both the Auctions (Bidding Agreements) Act 1927 and 1969 shall apply.
Where stated in the bid box above, you agree that Bamboo may pre-authorise your card for the amount of the Buyer's fee and Deposit. You will only be charged if you are the winning buyer. We will release the pre-authorisation at the end of the auction. You card issuer may take up to 10 working days for this amount to be available to you in your account.



